Avalon Panorama Cruises
Avalon Panorama – Panoramic views and effortless European discovery.
Avalon Panorama is a contemporary Suite Ship designed to immerse guests in the beauty of Europe’s great rivers. Sailing the Rhine, Main and Danube, she combines innovative Panorama Suites with an intimate guest capacity and relaxed onboard atmosphere. With light-filled public spaces and thoughtfully paced itineraries, Avalon Panorama offers a modern and welcoming way to explore Europe by river.
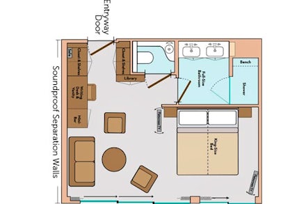
Avalon Panorama was the first of Avalon Waterways’ Suite Ships to introduce the line’s now-signature Panorama Suites, redefining how guests experience river cruising. Designed to maximise space and natural light, she keeps the ever-changing scenery firmly in view, whether sailing through the dramatic Rhine Gorge or along the historic Danube.
Her itineraries connect grand capitals, charming medieval towns, and vineyard-covered valleys. Each journey balances guided excursions with time for independent exploration, allowing guests to discover at their own rhythm.
Read moreReturning onboard feels like stepping into a calm and comfortable retreat, where the river remains centre stage.
Public spaces are open and inviting, from the expansive Panorama Lounge to the open-air Sky Deck. Evenings unfold with regional cuisine, local wines, and relaxed entertainment, creating a social yet unhurried atmosphere. Avalon Panorama suits travellers who value connection, comfort, and meaningful discovery without unnecessary formality.
Read lessShip Specification
| Maiden voyage: | 2011 |
|---|---|
| Number of decks: | 4 |
| Tonnage: | 2775 |
| Cabins: | 83 |
| Passengers: | 166 |
| Number of crew: | 47 |





